Laatste ontwerpen MFA nu te zien op SamenHengevelde.nl

De nieuwste ontwerpen voor de Multifunctionele Accommodatie (MFA) in Hengevelde, gepresenteerd tijdens de drukbezochte inloopavond van afgelopen maandag, zijn nu beschikbaar op SamenHengevelde.nl.

Succesvolle Inloopavond
Tijdens de bijeenkomst kreeg de werkgroep MFA veel lof voor het huidige ontwerp. De plannen bieden een duidelijk beeld van hoe de MFA eruit zal zien en hoe de ruimtes worden ingedeeld. Bezoekers leverden waardevolle feedback en suggesties, die zullen worden meegenomen in de verdere uitwerking. Voorafgaand aan de inloopavond was er een aparte sessie voor omwonenden. Vanuit deze groep kwamen zowel complimenten over de doorgevoerde aanpassingen als kritische aandachtspunten.

Open voor Dialoog
De werkgroep waardeert de input van alle betrokkenen en benadrukt het belang van samenwerking en dialoog. Het doel blijft om een plan te realiseren dat zo goed mogelijk aansluit bij de wensen en zorgen van de gemeenschap.

Plannen Nog in Ontwikkeling
De huidige ontwerpen zijn niet definitief. De feedback en ideeën die maandagavond zijn gedeeld, worden verwerkt in de volgende versie van het plan.

Bekijk de ontwerpen en deel uw mening via SamenHengevelde.nl. Samen maken we de MFA een plek waar iedereen zich thuis voelt!

Klik op de afbeeldingen voor een volledige weergave:

Zicht vanaf het hoofdveld
Vanaf de tribune
De tennisvelden
De MFA
Gevels en doorsnede
Doorsnede
Bovenaanzicht
Situatie
Gevels
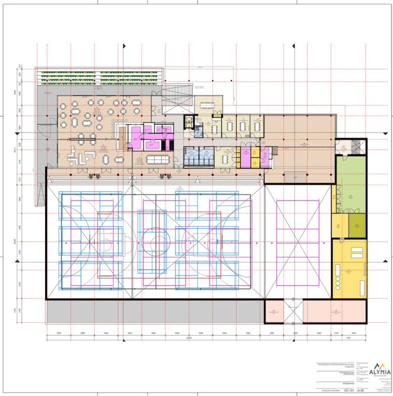
Verdieping
Beganegrond